Hôtel H1 Antsirabe : conception d’un hôtel de 23 chambres, Antsirabe 2014.
Conception : Tsirisoa
Entreprise : Hôtels H1 Madagascar
Le promoteur de l’Hôtel H1 Antsirabe a décidé de reprendre les mêmes couleurs utilisées sur l’Hôtel H1 Tamatave, et de créer ainsi son propre standard pour ces établissements sous l’enseigne Hôtels H1 Madagascar.
L’hôtel est implanté au centre de la ville d’Antsirabe, ville de détente pour les citadins d’Antananarivo, mais aussi de passage pour les touristes qui prennent la RN 7 vers le Sud de Madagascar.
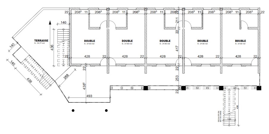
Le nouveau bâtiment de deux étages abritent 15 chambres qui s’additionnent à 4 chambres dans un autre bâtiment rénové, et 4 autres dans un dernier bâtiment récemment construit.
L’hôtel a choisi un standard de chambres de 25m² en moyenne, toutes agrémentées par des terrasses et balcons en façades, pour un confort élevé et pour faire profiter aux clients du jardin boisé sur le terrain d’implantation. Toutes les chambres du bâtiment à deux étages sont orientées vers l'Ouest pour profiter d’un maximum d’ensoleillement, très utile pendant l’hiver très rude d’Antsirabe.





